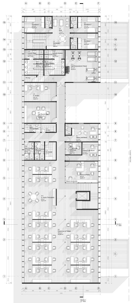
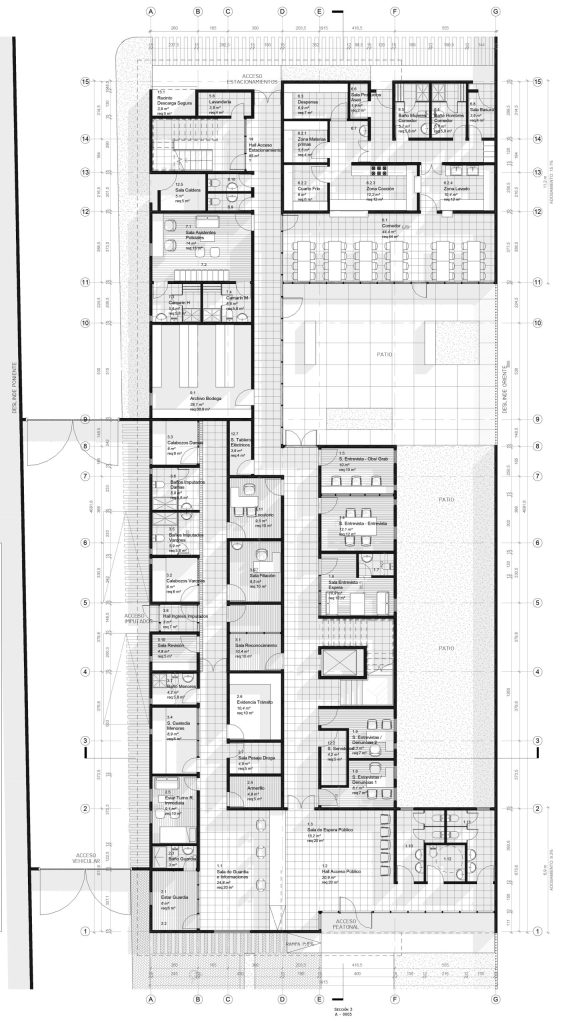
PDI Limache

Proyecto de cuartel policial para la PDI en Limache, diseñado bajo los últimos estándares metodologías BIM.

Año en construcción:

2021

Ubicación:

Limache

Consultores:

n.a

Arquitectos:

n.a

Fotografías

× ¿Cómo puedo ayudarte?