Asociación Nacional de Futbol

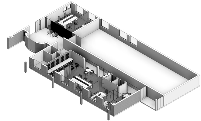
Levantamiento de condiciones y remodelación completa de las oficinas centrales de la principal institución del fútbol chileno. Diseño funcional que optimiza los espacios de trabajo y áreas de reuniones. Incorpora la identidad visual de la ANFP

Año en construcción:

2019

Ubicación:

Peñalolén, Región Metropolitana

Consultores:

n.a

Arquitectos:

n.a

Fotografías

× ¿Cómo puedo ayudarte?